Constructed with recycled steel bars, the modular dividers shelving plants, books and lights give Home Café a hybrid of industrial and horticultural touches.
Beijing, China, 2014/08/25 – Penda has been commissioned by the Beijing-based property developer Hongkun to lay out a concept for its café brand Home Café with potential to spread it throughout China. The café chain will incorporate various concept versions to offer spaces to breathein heavily polluted areas of China. Two debut locations opened its doors in Beijing and Tianjin. With air pollution being a major issue in Chinese cities, Penda decided to create a café for visitors to take a deep breath of clean air.
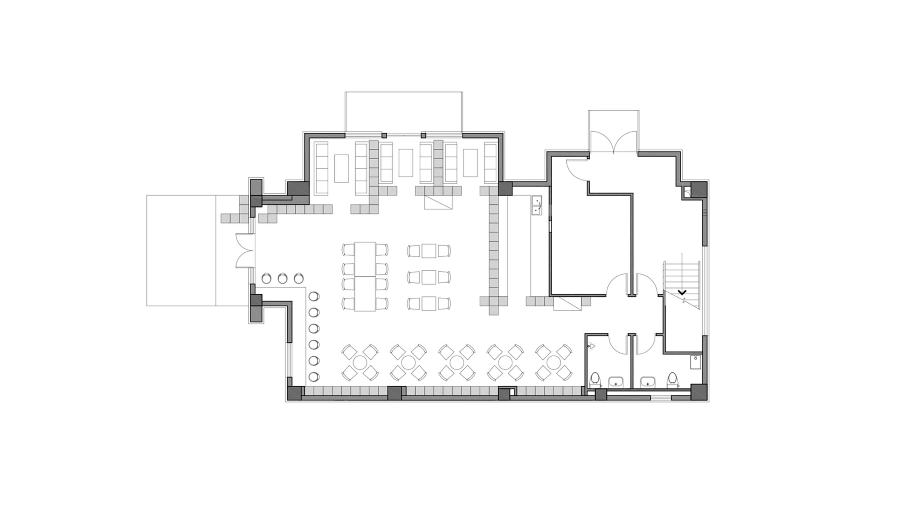
Steel bars are upcycled to become a main interior design feature. Commonly hidden within a building’s structure, steel bars are brought to light as a main design feature in Home Cafés. The reused steel bars are painted black, connected with each other and constructed as a grid that defines the appearance of the cafés.
A modular grid system and its various fillings offer flexible reconfiguration for the café.
The steel bars create a series of cubic frameworks, which can be combined to shelves of different sizes. This gives the owner freedom of reorganizingthe grid or even reusing its parts for a different location.
The structural grid offers a space, where various cubic elements can be implemented. Boxes of plants, books, and lights on different levels create various densities for the interior. By organizing the cubes, the modular system allows a flexible assembly for different occasions.
The plants in the café offer visitors a space to breathe within a polluted city.
Many of the wooden pots are filled with air purifying and easy-to-grow plants such as spider plants, sword fern and marble queen. Other pots containa wide range of herbs, along with freshly brewed coffee to produce an aroma-rich environment. The space connects directly to all human senses: roughplaster wall, leather seatings and wooden furniture – touch, premium coffee and cakes – taste, the plants and herbs that offer visual and aromatic highlight. The café will welcome people to come in not only for quality coffee, but also to enjoy a green oasis in the midst of a polluted city.
The growth of the plants will offer a varying appearance for returning costumers.Vine plants and ivy are seeded inside some pots. As they grow along the framework and slowly take over the steel, the plants will become a main design feature of the cafes and attract customers to return to a constantly alternating space.
PROJECTNAME:HOME CAFES
PROJECTLOCATION:Beijing and Tianjin
PROJECTSIZE:2 00-400㎡
PROJECTTYPE:Interior
PROJECTYEAR:2014
DESIGNCOMPANY:penda China
PROJECTTEAM:Sun Dayong、Chris precht
PHOTOGRAPHER:Xia Zhi